Andaz
Year: 2019-current (Under Construction)
Type : Architect at Büro Ole Scheeren
Group memeber: Harshdeep Arora, Kevin Fu, Irene Hsu, Antoine Muller, Shanil Riyaz, Edward Wu, Mingchuan Yang, Bruno Zhao, Yueming Zhao
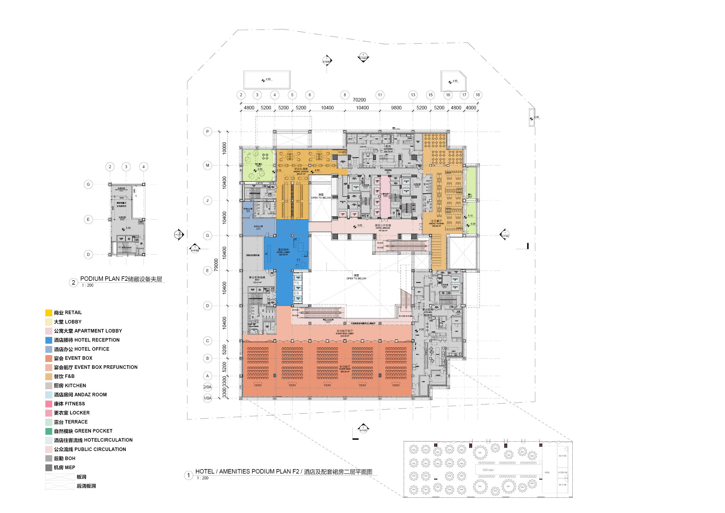
The new high-rise apartment and Andaz hotel in Xi'an is an architectural marvel that blends luxury and innovation. Inspired by Cedric Price, the design employs a shifted box language, creating a striking visual composition. The complex spans 77,000 m² and includes residential, hotel, and retail spaces. A central feature is the multi-surface atrium, a versatile space designed to host luxury brand fashion shows and other high-end events. This atrium serves as a vibrant hub, enhancing the building's dynamic and upscale atmosphere. The project redefines urban living and hospitality in Xi'an, offering a unique blend of residential comfort, hotel luxury, and retail sophistication.





